奢华卫浴清凉一夏,石材包浴缸工艺做法及案例欣赏
卫浴间的品味和档次
因为石材大大提升
除了墙面、地面和台面板
大理石浴缸更使沐浴者陶醉


除了一整个大理石打造的超级豪华浴缸

还有将浴缸和大理石相结合
打造一个高大上的洗浴室
下面就来说一说一般情况下
常见的大理石浴缸分三种工艺
工艺一:浴缸与石材相接部位按浴缸边缘压石材施工工艺
工艺流程:放样→角铁基架焊接安装→钢丝网安装→水泥砂桨粉刷→石材安装→浴缸安装
工艺标准说明:
(1).浴缸与石材相接部位按浴缸边缘压石材的做法施工,石材台面按整块石材根据浴缸尺寸切割镂空磨边工厂加工完成后现场安装,石材与浴缸交接处用耐候胶收口。
(2).浴缸周边石材部位作4*4镀锌角钢支撑架,钢丝网水泥砂桨粉刷后再安装石材,并留设石材检修暗门,检修门规格及方向 需符合检修要求。
工艺二:浴缸与石材相接部位按石材压浴缸施工工艺
工艺流程:放样→角铁基架焊接安装→钢丝网安装→水泥砂桨粉刷→浴缸安装→石材安装→板缝处理
工艺标准说明:
(1).浴缸与石材相接部位按石材压浴缸的做法施工,石材台面按整块石材根据浴缸尺寸切割镂空磨边工厂加工完成后现场安装,石材与浴缸交接处用耐候胶收口。
(2).浴缸周边石材部位作4*4镀锌角钢支撑架,钢丝网水泥砂桨粉刷后再安装石材,并留设石材检修暗门,检修门规格及方向需符合检修要求。
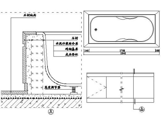
工艺三:浴缸与石材相接部位按浴缸与石材做平施工工艺

工艺流程:放样→砖墙砌筑→水泥砂桨粉刷→浴缸安装→石材安装→板缝处理
工艺标准说明:
(1).浴缸与石材相接部位按浴缸与石材做平的做法施工,石材与浴缸接缝处留2mm用耐候胶收口。
(2).侧面留设石材检修暗门,检修门规格及方向需符合检修要求
(3)石材台面是整块石材时,在工厂加工时必须根据浴缸尺寸切割镂空磨边,且要考虑现场的实际运输条件和运输时成品保护
大理石浴室浴缸案例欣赏































